Byty k pronájmu

V centru Dolních Břežan

  • 00

    metrů2

  • 00

    Parkování

  • 00

    bytů

  • 00

    pokojů

Dolní Břežany

V Dolních Břežanech najdete vše důležité pro příjemné bydlení: pěkné prostředí s parky a upraveným veřejným prostorem, kvalitní občanskou vybavenost, fungující komunitní a sousedský život.

Dolní Břežany se nacházejí v bezprostřední blízkosti hlavního města a mají velice dobrou dostupnost MHD i autem. Leží deset kilometrů od nájezdu na dálnici D1, nedaleko od obchvatu Prahy. Dobrá dostupnost není ovšem hlavní devizou tohoto malebného místa s keltskou minulostí. Dolní Břežany jsou místem s typickou atmosférou malého sídla, kde je živo, a které zároveň postrádá anonymitu, chaos a neosobnost velkoměsta.

Městečko je výjimečné nadprůměrnou občanskou vybaveností. Nachází se v něm moderní základní škola, sportovní hala, hřiště, dvě mateřské školy, soukromá škola a gymnázium, základní umělecká škola.

Centrum obce tvoří náměstí s obchody, kavárnami a restauracemi, poštou. Nedaleko je rovněž objekt polikliniky a také komunitní centrum s knihovnou, kinem a prostory pro klubovou činnost. Je skvělým výchozím bodem pro vycházky a výlety do přírody, cyklistiku, běh a pobyt v přírodě. Díky aktivní místní komunitě existuje v Dolních Břežanech celá řada spolků pro děti, rodiny i seniory. Místo je specifické existencí dvou špičkových mezinárodních vědeckých center.

complex
Nájemní bydlení

Moderní bytový dům ve vysokém standardu

Bytový dům, jehož autorem je renomovaný ateliér Jakub Cigler Architekti a.s., je umístěn u historické návsi v centru obce, v těsné blízkosti zámku. Pro tuto lokalitu je specifická rozptýlená zástavba menších domů s přilehlými hospodářskými staveními.

 

Architektonická forma domu respektuje tradiční středočeskou architekturu. Celý objekt má evokovat stodolu s užitím materiálu jako je omítka na fasádě, kámen na zpevněných površích a předsazené dřevěné plaňky před pavlačemi a terasami. Dvoupodlažní budova se sedlovou střechou se drží formy místních hospodářských stodol.

Dům má devět bytů, jednoduchou pavlačovou dispozici, parkovací stání jsou venkovní. Schodiště z přízemí jsou exteriérová, bez společných prostor. Každý byt má vlastní sklípek, přístupný z pavlače nebo terénu. V domě jsou rozvedeny telefonní, datové, televizní, rozhlasové, satelitní rozvody a domácí telefon. V objektu je k dispozici 12 venkovních parkovacích míst.

Byty v domě jsou určeny k dlouhodobému pronájmu privátním osobám, případně firmám.

Vybavení domu

Vysoký standard

  • Každý byt má vlastní závěsný kondenzační kotel na plyn se zásobníkem na teplou vodu.

  •  

    Obytné místnosti v 1. a 2. patře jsou osazeny podlahovými konvektory s ventilátorem.

  •  

    Ve 3. patře jsou byty vybaveny deskovými tělesy s termoregulačními hlavicemi.

  •  

    Koupelny jsou vytápěny žebříky.

  •  

    Součástí na míru vyrobených kuchyňských linek je vestavná myčka a trouba, odsavač par a varná deska.

  •  

    V bytech jsou položeny vinylové podlahy, na chodbách a v koupelnách dlažba.

  •  

    Předsíně jsou vybaveny vestavěnými skříněmi.

  •  

    Podkrovní byty jsou osazeny klimatizací.

  •  

    Na terasách jsou navrženy stínící markýzy.

  •  

    Součástí střešních oken jsou venkovní zatemňovací žaluzie.

  •  

    Vybavení bytů, sanita a materiály jsou navrženy v nadstandardní kvalitě.

Neváhejte nás kontaktovat

Sjednejte si schůzku ještě dnes

Byty v domě

Vyberte si byt
pro Váš nový život

Byty

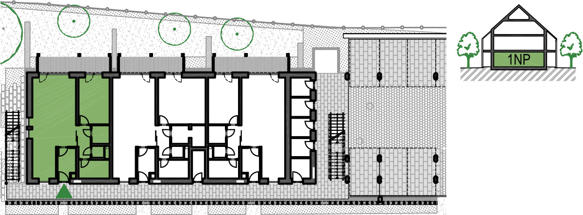
Přízemní 2+kk (101)

Byty

Přízemní 2+kk (102)

Byty

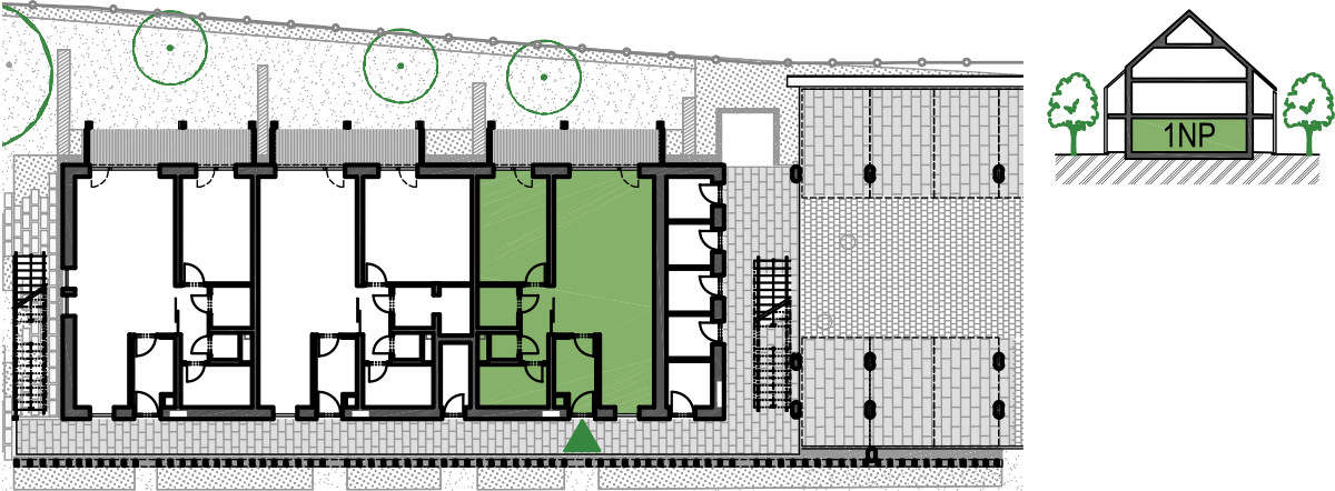
Přízemní 2+kk (103)

Byty

V patře 2+kk (204)

Byty

V patře 2+kk (205)

Byty

Penthouse 4+kk (309)